slogan
<i>Green Lab</i> <i>Northern Quarter</i> <i>Manchester</i>
Realmac Software Logo
  • architecture:m contact us 0

Green Lab Northern Quarter Manchester

Healthy Living in the City
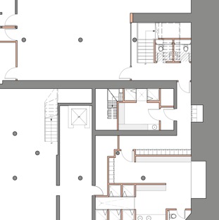
Architecture:m was approached by The Green Lab following their acquisition of a ground floor and basement unit within a listed building in Manchester City Centre. Their vision was to transform the former clothing store and subsequent barber shop into a vibrant health food bar on the ground floor and a dance/yoga studio in the basement. Positioned at the prominent corner of Dale Street and Newton Street in the Northern Quarter, the listed building unit offered immense potential to serve local residents and city centre workers, contributing to the dynamic and health-conscious community of the area. The interior design took precedence from The Green Lab’s ethos and brand identity, emphasising a harmonious blend of natural elements and modern aesthetics. The health food bar and restaurant on the ground floor featured soft neutral tones, timber accents, and lush plantings, creating a warm and inviting atmosphere that encourages relaxation and social interaction. Thoughtfully placed seating arrangements and natural lighting further enhanced the space, making it a welcoming retreat for patrons seeking healthy food options. The dance/yoga studio in the basement was designed to mirror this aesthetic, ensuring a seamless transition between the two levels. The studio incorporated the same colour scheme and material palette, using natural materials and soft hues to create a serene and focused environment for physical activity and meditation. The space was equipped with high-quality flooring suitable for both dance and yoga, as well as ample storage for equipment and personal belongings. The strategic location of the unit in the Northern Quarter, combined with the thoughtfully designed interiors, positioned The Green Lab as a central hub for health and wellness in Manchester. The transformation of the unit into a health food bar and dance/yoga studio exemplified a perfect blend of historical preservation and modern innovation, making it a valuable addition to the vibrant fabric of the city.
GreenLab-Cafe-Health-Listed Building-Manchester-Basement.jpg
GreenLab-Cafe-Health-Listed Building-Manchester-Exterior 1.jpg
GreenLab-Cafe-Health-Listed Building-Manchester-Exterior 2.jpg
GreenLab-Cafe-Health-Listed Building-Manchester-Exterior 3.jpg
GreenLab-Cafe-Health-Listed Building-Manchester-Front Elevation.jpg
GreenLab-Cafe-Health-Listed Building-Manchester-Ground.jpg
GreenLab-Cafe-Health-Listed Building-Manchester-Interior 4.jpg
GreenLab-Cafe-Health-Listed Building-Manchester-Interior 5.jpg
GreenLab-Cafe-Health-Listed Building-Manchester-Interior 6.jpg
GreenLab-Cafe-Health-Listed Building-Manchester-Interior1.jpf
GreenLab-Cafe-Health-Listed Building-Manchester-Side Elevation.jpg