<i>apartments</i> <i>school lane</i> <i>didsbury</i>
Realmac Software Logo
  • architecture:m contact us 0

apartments school lane didsbury

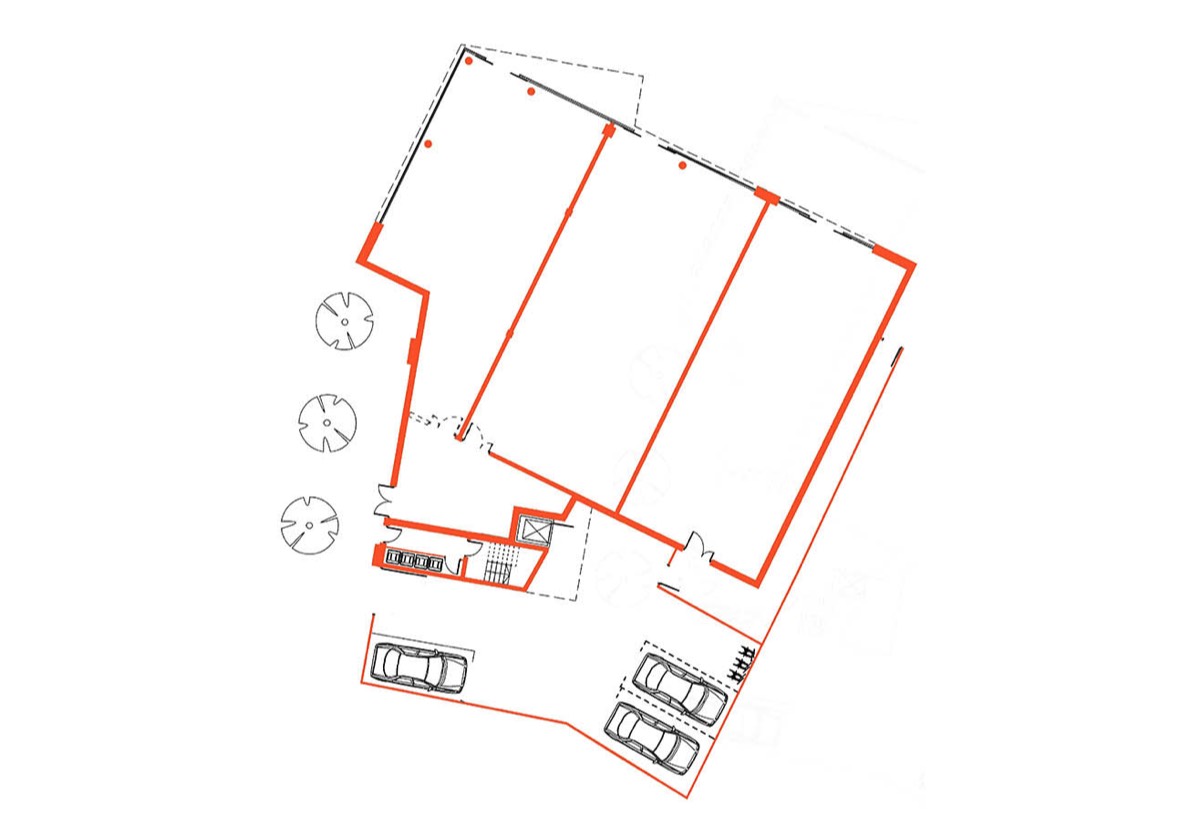
Architecture:M have proposed the redevelopment of 86-90 School Lane in Didsbury by demolishing the existing redundant 1930's retail space, which currently makes little of its site and is in great need of development just to be made good. The building will contain three ground floor commercial units all accessed off School Lane, with two two-bed apartments and one four-bed duplex apartment on the floors above, accessed from Ladysmith Road.

The new structure revitalizes this corner plot by creating a dynamic form which aims to reinvigorate the currently undervalued site. This proposal references the local context through massing, materiality and by accentuating the local building line of School Lane and Ladysmith Road, which provides this dynamic. This is a contemporary architectural solution and given the twee bay-windows and pitched roofs seen in much of the area, it may have been easier to sleepwalk into an uninspiring building that copied this approach.

Encouragingly the Planning department and Manchester City Council asked for this proposal, which reflects its age. Given this freedom we have hoped to create a structure that's reacts successfully with the local context whilst helping the community though the addition of three good quality retail units.


LOADING